CХЕМЫ УСТАНОВКИ ПРОДУКЦИИ HAURATON
ПОДРОБНЫЕ РЕКОМЕНДАЦИИ ПО УСТАНОВКЕ ДЛЯ РАЗЛИЧНЫХ ОБЛАСТЕЙ И КЛАССОВ НАГРУЗКИ
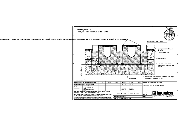
Любая система будет функциональна и надежна только тогда, когда правильно определена область ее применения, т.е. система подобрана с учетом тех условий, в которых она будет эксплуатироваться. Кроме того, важным фактором является правильная и профессиональная установка. Компания HAURATON придерживается этих правил и для своей продукции.
Для успешной реализации проекта мы предлагаем наши подробные рекомендации по установке. Они снабжены спецификациями и чертежами для различных классов нагрузок и областей применения.
Вы можете скачать каталог с инструкциями по установке на РУССКОМ языке в формате pdf.
